设计师
移动端
微信公众号
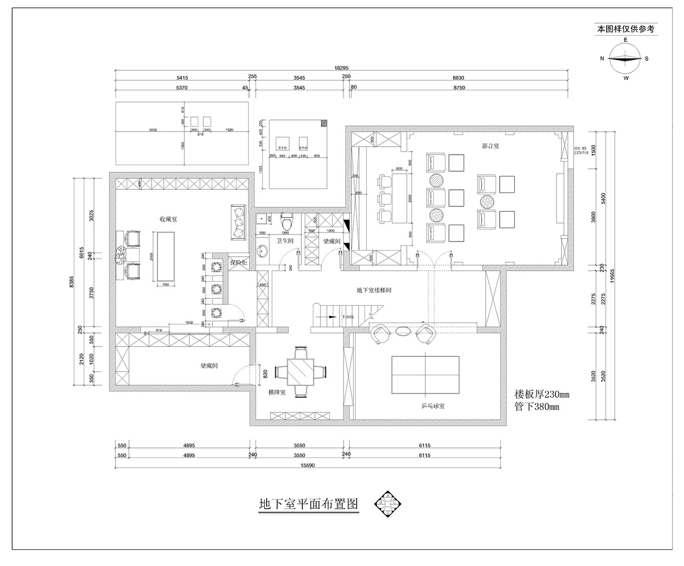
东岸国际
150㎡
四居室
欧式新古典
家庭装修,更多人选择我们
全维装,美学设计 效果还原度高,所见即所得
材料严选,大牌建材 健康环保,品质无忧
合理规划,省时省力 小空间大利用
项目管理全程跟踪 交付满意答卷
全程托管,售后无忧 多对一专享服务,售后无忧